国徽

热点查询: 财政预决算 政府工作报告 优化营商环境 投资政策

当前位置:首页> 信息公开 > 土地收储入库公告

土地收储入库公告

发布日期:2023-05-06 09:20 浏览量:31570 来源:县自然资源局
[ 字体: ]
分享:

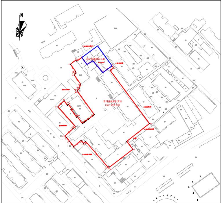
广大群众:

按照县德赢VWIN安排,我局拟将原青川宾馆地块及周边零星土地(范围详见附件)收回政府土地储备库,宗地位于青川县城秦兴街89号,根据实地踏勘,宗地地面建筑物已全部拆除,产权清晰,宗地内外无权属纠纷符合土地储备管理办法入库相关规定,现拟将该宗地纳入政府土地储备库依规利用。

如有未尽事宜,请相关权利人自本公告发布之日起15日内持相关材料到县自然资源局四楼县土地矿权收购储备交易中心提出异议主张权益,逾期不提交相关权属材料的视为自动放弃。

咨询电话:县土地矿权收购储备交易中心,7203009。



青川县自然资源局

202356

附件:


扫一扫在手机打开当前页